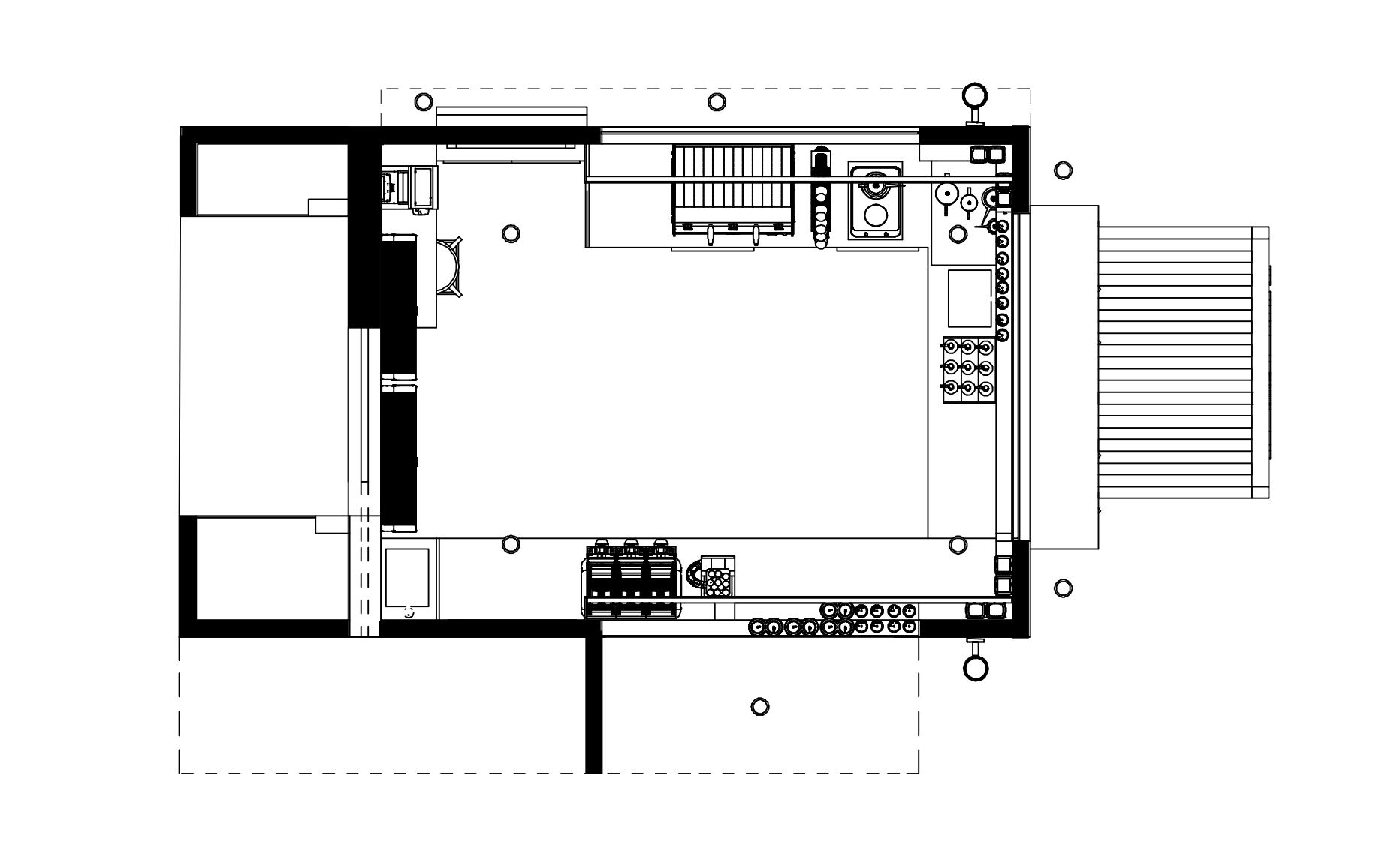
Kiosk design Area: 12 m2 Facade orientation: North, South, East & West Status: Completed
In such an important location, Atheel Café local brand aims to be the first kiosk choice for King Abdul Aziz University's students. It was known as the green kiosk, now it will be known as the simplest kiosk design around. The kiosk design can be shaped in different finishings as a signature kiosk design, where you only have to change the north side mass to a different material as well as changing the overall materials.














